您身邊的防火玻璃與門窗生產專家
您真正需要的防火安全系統
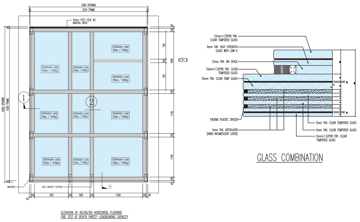
防火天頂地臺
防火玻璃地臺特點:
1.防火隔熱60分鐘、90分鐘、 120分鐘,地臺每平方米承重500kg以上,達到水泥樓板的承重設計要求;
2.與其他固定式玻璃地臺選用一樣靈活,但經過精心設計以符合消防條例;
3.專業技術用于隔音和防火、隔熱、實用可靠;
4.優雅豪華設計,以及美學設計,即使附近發生火災,仍可走動。
★ 承重防火地臺,天頂玻璃的測試
★ 依照歐標BS EN1365-2:2000和英標BS 476 : Part21 : 1987標準進行防火和承重測試。
產品節點圖:
防火玻璃幕墻
防火玻璃隔墻